— 产品中心 —
PRODUCT CENTER
ZHMM 系列密集绝缘型母线槽适用于额定电压 690V 以下,额定工作电流 100-5000A、频率 50-60Hz 的输配电系统。
产品详情

一、适用范围
ZHMM 系列密集绝缘型母线槽适用于额定电压 690V 以下,额定工作电流 100-5000A、频率 50-60Hz 的输配电系统。
二、结构性能
1、采用合理的 “三明治” 相线紧密叠压结构设计,使母线槽外形更加紧凑、体积更小,并增加了母线系统的动热稳定性,使母线具有阻抗低、电压降低的优点,杜绝了发生火灾时母线槽 “烟囱效应” 的形成。可应用于施工现场的大跨距安装。
2、外壳采用模制电工用铝型材与冷拉成型薄钢型材混合组成(也可采用加强型全铝合金型材结构)。该套外壳为轻质全封闭、不通风型,既拥有钢质外壳的高轻度,又有铝外壳良好的抗锈蚀性和较好的散热性、接地性。其特殊的弱磁性铝质侧板,可削减大电流母线相间的涡流现象,降低母线导体因涡流而引起的发热现象,能显著增强母线排载流能力;并在外壳范围内构成整体式接地系统,在发生大容量接地故障时,可有效地缓解母线 PE 接地排的压力,以双保险的形式组成第二条接地系统,保护整条母线槽系统的安全运行。
3、采用标准配置的单臂锁紧避震连接器,连接可靠方便。
4、可方便地设置馈电插接口,上下两面均可同时设置,且不降低其抗弯强度。馈电插接口的安全防护等级达 IP54(符合标准 IEC529)。每套插接口均设有特制的开合锁定装置,可防污物、防尘和防止误操作,其材料为 ABS 工程塑料。
三、绝缘配置
ZHMM 系列密集绝缘型母线槽绝缘介质主要采用绝缘材料 — 聚酯薄膜(美国杜邦 Mylar),该材料具有较好的耐高温性(在高温中无有毒气体释出)、较高的介电性能,绝缘等级为 “B” 级。也可采用绝缘材料 “塑料王”— 聚四氟乙烯定向薄膜(SFM-3),该材料耐温等级很高(-180℃~+250℃),单层耐压 6000V,绝缘等级 “C” 级,绝缘老化寿命 50 年以上,为现行实用绝缘材料中性能好的产品。
四、主要技术参数
1、采用 “三明治” 密封结构设计,一般防护等级为 IP42,IP54,特殊要求可达 IP65。
2、母线系统能承受 3750V 的工频耐压,历时 1min 无击穿和闪络现象。
3、母线系统在长期接通额定电流工作时,其温升不超过:连接端子:60K,金属外壳:30K,槽内绝缘件表面:40K。
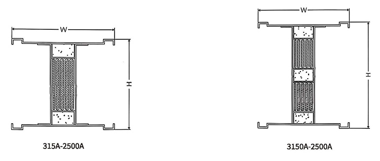
五、母线截面示意图及性能参数
1、母线槽截面示意图

2、母线槽性能参数
