— 产品中心 —
PRODUCT CENTER
ZHMK 系列空气绝缘封闭型母线槽适用于交流三相四线制、三相五线制、频率 50-60Hz,额定电压至 660V,额定工作电流 250-5000A 的供配电系统,承担配电任务,用于低压配电屏与大、中型负载的连接,主要用于现代化的车间、厂房和高层建筑。
产品详情

一、适用范围
ZHMK 系列空气绝缘封闭型母线槽适用于交流三相四线制、三相五线制、频率 50-60Hz,额定电压至 660V,额定工作电流 250-5000A 的供配电系统,承担配电任务,用于低压配电屏与大、中型负载的连接,主要用于现代化的车间、厂房和高层建筑。
二、结构特点
母线槽采用对接式安装方式,使得母线槽在安装过程中显得非常便捷、灵活,大大节约了安装时间。
母线槽采用分离空气绝缘式,改善了母线槽的散热性,降低了阻抗;内部绝缘件采用高强度的环氧树脂,提高了母线槽的抗动和热稳定的能力。
所有电流等级的母线槽均采用统一的盖板,标准化程度高、互换能力强、变容接口方便。
母线槽通过插接箱分流,可免遭电缆剥皮,连接不安全之苦恼。如你的产品、设备更换,将母线重新组合安装,母线插口分支始终可达到你所需的位置。故使用母线槽配电可令你终身满意。
三、母线槽功能单元及简介

·L 型母线:用于实现 90° 水平或垂直转向。
·Z 型母线:用于实现错位转向。
·T 型母线:用于实现三路分支连接。
·始端母线:用于与电源或配电柜连接。
1 外壳
本厂生产的该系列母线槽外壳采用成型机辊压成型,体积小,外观精美,具备足够的载荷能力,支撑和保护母线槽系统,避免机械受损。
外壳(除冲散热孔外)能保证 IP40 以上防护等级;通过母线槽的外壳本身保证良好的接地连续性。
外壳材料一般采用钢板制成,其防腐处理可采用喷漆、喷塑、电镀、热浸锌和热喷锌等方法;对于 4000A 以上母线槽,因外壳涡流发热原因,采用铝板或不锈钢板制成。当用户有防腐等特殊要求时,4000A 以下的母线槽,也可选用铝板或不锈钢板等防腐材料制成。
2 导体
载流部件采用铜、铝或其合金材料,母排的所有接点和连接处均镀锡。
3 绝缘部件
空气绝缘封闭型母线所选用的绝缘材料均能承受温升试验温度的长期耐热能力,并具备足够的绝缘能力、机械强度和抗老化能力。
4 接头
母线槽接头能够确保有足够的接触面和绝缘能力;所有接头螺栓设置均有利于进行安全检查和检修。
四、主要技术参数
1.母线槽能保证在额定电流及 110% 的额定电压下长期正常工作。
2.防护等级为 IP40。
3.母线槽在周围空气温度为 20±5℃,相对湿度为 50-70% 的常态下,其每节的绝缘电阻不低于 20M2。
4.母线系统能承受 3750V 的工频耐压,历时 1min 无击穿和闪络现象。
5.母线系统在长期接通额定电流工作时,其温升不超过:连接端子:60K,金属外壳:30K,槽内绝缘件表面:40K。
6.插接箱与母线槽的拔插次数不少于 200 次。
五、母线截面示意及性能参数
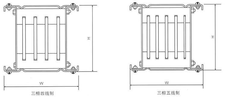
1 母线槽截面示意图

三相四线制:标注尺寸 W(宽度)、H(高度)。
三相五线制:标注尺寸 W(宽度)、H(高度)。
2.母线槽性能参数

3。母线槽连接图
